品牌:上海正封阀门
发货:3天内
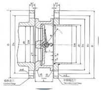
| H77X型对夹式双瓣止回阀概述: 止回阀安装在管路系统,其主要作用是防止介质倒流,止回阀是一种依靠介质压力开启和关闭的自动阀门。以往国内普遍采用的是H44型法兰连接旋启式止回阀和H41型法兰连接升降式止回阀,这种传统的止回阀体积笨大,流体阻力大,阀门关闭时水锤压力高,安装、维修难,使用寿命短。 | |
![]() | ![]() |
| H77X型对夹式双瓣止回阀性能参数: 型 号公 称 压 力 PNMPa试验压力PNMPa工作温度 (℃ )适用介质壳 体密 封H77XH77HH77YH77W1.01.51.1软密封:<80硬密封:<450水、气体、油品、硝酸等1.62.41.762.53.752.754.06.04.46.49.67.0 | |




