| 材质 | 发泡水泥 |
|---|---|
| 产地 | 北京、河北 |
| 类别 | 轻质隔墙板 |
| 颜色 | 灰白 |
| 种类 | 聚苯颗粒水泥夹芯复合条板内隔墙 |
| 品牌 | 景涛艺顺 |
| 型号 | 168 |
聚苯颗粒水泥夹芯复合条板内隔墙说明
1简介
聚苯颗粒水泥夹芯复合条板内隔墙(D型),简称聚苯颗粒水泥条板内隔墙,轻质条板为复合实心,是采用纤维水泥平板或纤维增强硅酸钙板等作为面板与夹芯层材料复合制成,板内芯为聚苯颗粒和水泥。面板一般采用纤维水泥平板,纤维增强硅酸钙板、玻镁平板、石膏平板等。
2聚苯颗粒水泥条板常用规格,主要技术性能指标(见表1)
3聚苯颗粒水泥条板内隔墙主要技术性能指标(见表2)
4设计说明
4.1选用的条板为常用规格,设计可根据工程需要选用其他规格条板。
4.2预制的门、窗框板靠门、窗框一侧应设置钢预埋件或木砖,以便与门、窗框固定。也可在施工现场切割制作门、窗框板,单条板的容重不应低于800kg/m3,可采用膨胀螺栓与门、窗框固定。应根据门窗洞口大小确定固定位置和螺栓数量,每侧的固定点应少于3处,必须满足设计要求。同事应加装门套,采取加强措施。
4.3安装隔墙选用的配套材料应满足设计要求并提供使用说明书及检测报告。
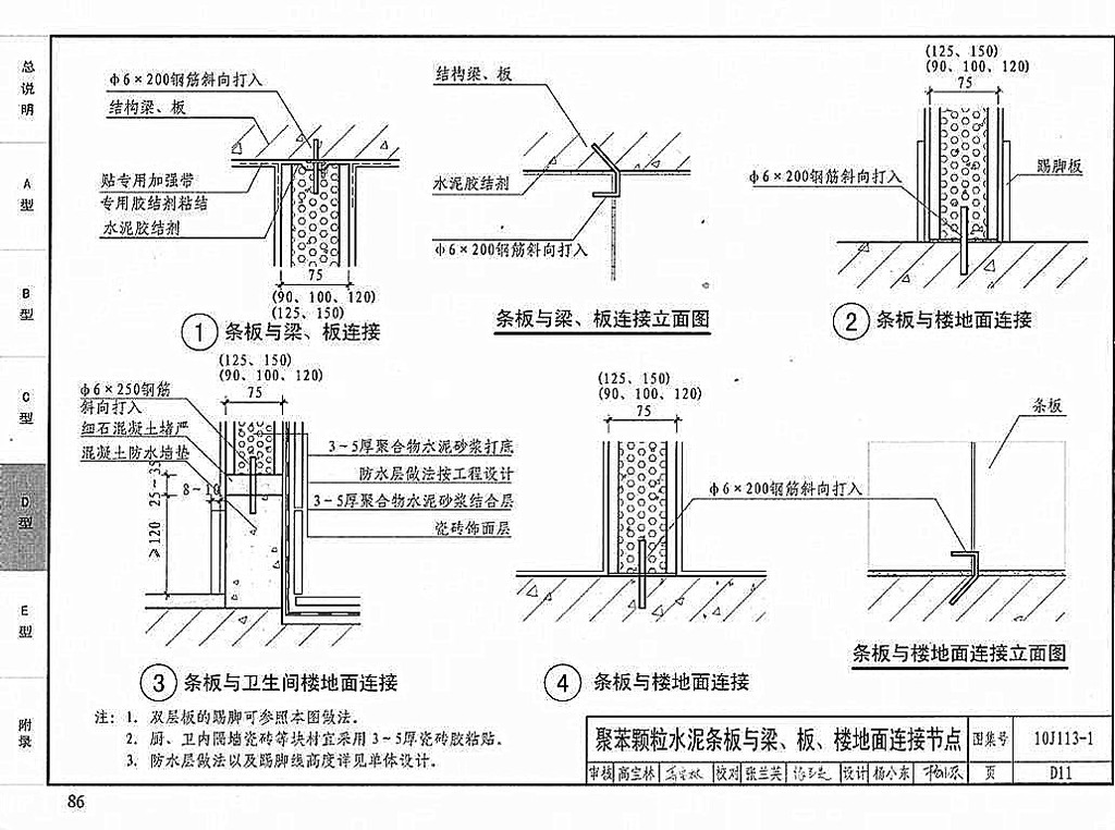
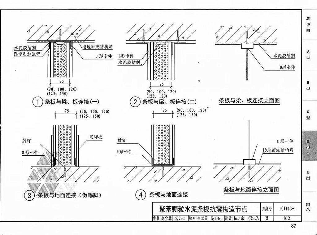
4.4安装隔墙采用粘接材料性能见附录。1“粘接剂用于板与板,板与主体结构的粘接。2“粘接剂用于条板吊挂件、构配件粘结和预埋件补平、修复。

















石家庄复合隔墙板 轻质隔墙板 隔墙板://b2b.hc360.com/supplyself/766309999.html

