| 产地 | 河南 |
|---|---|
| 大车运行速度 | V3 |
| 额定起重量 | 5(吨) |
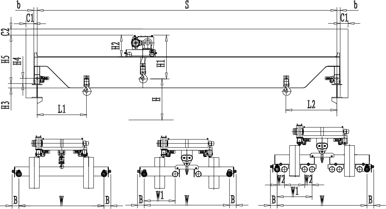
| 跨度 | S-起重机跨度 Crane span |
| 类型 | 钢丝绳电动葫芦 |
| 品牌 | 河南矿山 |
| 型号 | U型 |
| 加工定制 | 是 |
| 起重机类型 | 双梁起重机 |
| 有效起升高度 | 9(米) |
| 配件适用对象 | 起重机 |
| 工程机械种类 | 起重机械 |


选型说明 1、本产品系列表仅列出了常用的基本的规格起重机,工作级别为A5(FEM 2m)时的标准跨度,没有副钩的室内用起重机。客户根据需要可以提出相应的要求。 2、本系列也可以增加副起重机构,也可以增加轻载时速度加倍的设置,一般主副的设置为4:1,也可以根据客户的要求设定。囚设置副钩则起重机的总重及轮压会有所增加。 3、表中的尺寸,重量,轮压供客户订货时参考,如果客户的需要条件发生变化,如工作级别,速度,起升高度有变化时,相应的参数,尺寸,重量,轮压等都会发生变化,实际的参数,质量,轮压以合同的要求为准。 4、表中列出的起升速度,大小车速度为标准值,可以根据客户的需求做相应的调整。 5、技术参数及尺寸会因为技术的改进或者升级有所变化,如有疑问的话可以和公司技术部联系。

